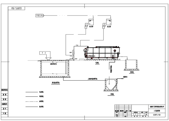
氣浮一體化設備構造原理
氣浮一體化設備構造原理:
經加藥反應后的污水進入氣浮的混合區,與釋放后的溶氣水混合接觸,使絮凝體粘附在細微氣泡上,然后進入氣浮區。絮凝體在氣浮力的作用下浮向水面形成浮渣,下層的清水經集水器流至清水池后,一部分回流作溶氣使用,剩余清水通過溢流口流出。氣浮池水面上的浮渣積聚到一定厚度以后,由刮沫機刮入氣浮機污泥池后排出。


氣浮一體化設備特點:
1、處理能力大、效率高、占地少。
2、工藝過程及設備構造簡單,便于使用、維護。
3、能消除污泥膨脹。
4、氣浮時向水中曝氣,對去除水中的表面活性劑及臭味有明顯的效果,同時由于曝氣增加了水中的溶解氧,為后續處理提供了有利條件。
5、對低溫、低濁、含藻類多的水源,采用氣浮法可取得最好的效果。


氣浮一體化設備安裝:
1、設備安裝前,必須夯實地基。并用混凝土砂漿墊高100-150mm。也可架空安裝,但基礎必須能承擔設備運行時的重量。
2、設備就位后需調整水平。
3、設備需設清洗用下水道,可挖明渠,也可直接采用管道接至調節池,以便沖洗氣浮池的水排出去。
4、污水進口與反應池之間的聯接管道,要求越短越好,以免絮凝體在管道中被破壞。
5、清水出口可接通下水道排放,如需進入下道處理工序,可直接與下道處理設備相接。
6、污泥出口可接至污泥槽或污泥處理設備。
7、電器箱一般應 放置在扶梯側面,環境應干凈、清潔。

氣浮一體化設備調試前,應做好以下準備工作:
1、要清洗水池內所有的贓物、雜物。
2、對水泵及空壓機等需要潤滑部位進行加油潤滑。
3、接通電源,啟動水泵,檢查轉向是否與箭頭所標方向一致。用手動控制啟動空壓機,檢查空壓機運轉是否正常,發現異常情況應及時查清原因。
4、按下刮沫機開關,使其向溶氣系統一端行走。運行到頭后在行程撞塊作用下,刮沫機反向行走,直到污泥槽,行程撞塊將刮板翻起,按下停止按鈕,停止刮沫。


返回首頁
電話
產品中心