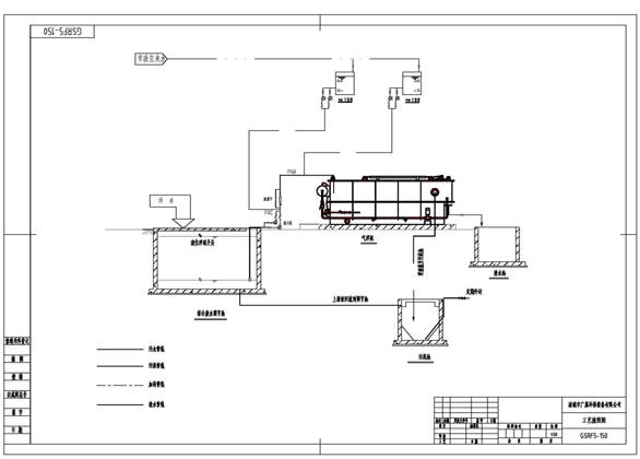
微浮選氣浮工作原理
一、微浮選氣浮工作原理:
污水中的污染物分為溶解性有機物和非溶解性物質(即SS),溶解性有機物在一定條件下,可以轉化為非溶液解性物質,污水處理的方法之一就是加入混凝劑和絮凝劑使大部分溶解性有機物轉達化為非溶解性物質,再將全部或大部分非溶液解性物質(即SS)去除以達到凈化污水的目的,而去除SS的主要方法就是利用氣浮的方法。
溶氣罐產生溶氣水,溶氣水通過釋放器減壓釋放到待處理的水中。溶解在水中的空氣從水中釋放出來,形成20-40um的微小細泡,微氣泡同污水中的懸浮物結合,使懸浮物比重小于水,并逐漸浮到水面形成浮渣。水面上備有刮板系統,將浮渣刮入污泥池。清水從下部經溢流槽進入清水池。
氣浮時向水中曝氣,對去除水中的表面活性劑及臭味有明顯的效果,同時由于曝氣增加了水中的溶解氧,為后續處理提供了有利條件。

二、微浮選氣浮溶氣系統:
溶氣系統主要由溶氣罐、儲氣罐、空氣壓縮機、高壓泵組成,溶氣罐是系統中最關鍵的部分,其作用就是實現水和空氣的充分接觸,加速空氣溶解。它是一個密閉耐壓鋼罐,內部設計有擋板、隔套、可以加速氣體和水體的分散、傳質過程,提高溶氣效率。

三、微浮選氣浮特點 :
1、系統采用集成化組合方式,有效減少空間需求,占地小,能耗低。
2、自動化程度高,操作方便,管理簡單。
3、溶氣效率高,處理效果穩定,根據需要,可調整溶氣壓力和溶氣水回流比。
4、按不同的水質及工藝要求:可提供單溶氣裝置或雙溶氣裝置。
5、采用可反沖釋放器,提高溶氣水的利用效率,同時保證設備工作穩定。

四、微浮選氣浮應用領域:
1、分離地表水中細小懸浮物,藻類等微聚體;
2、回收工業廢水中有用物質等;
3、代替二沉池分離和濃縮水中污泥等懸浮物;
4、塑料、石油、化工、造紙、皮革、印染、紡織、食品等加工行業。

五、微浮選氣浮安裝、調試:
(一)、安裝
1、設備安裝前,必須夯實地基。并用混凝土砂漿墊高100-150mm。也可架空安裝,但基礎必須能承擔設備運行時的重量。
2、設備就位后需調整水平。
3、設備需設清洗用下水道,可挖明渠,也可直接采用管道接至調節池,以便沖洗氣浮池的水排出去。
4、污水進口與反應池之間的聯接管道,要求越短越好,以免絮凝體在管道中被破壞。
5、清水出口可接通下水道排放,如需進入下道處理工序,可直接與下道處理設備相接。
6、污泥出口可接至污泥槽或污泥處理設備。
7、電器箱一般應 放置在扶梯側面,環境應干凈、清潔。

(二)、調試:
A、設備調試前,應做好以下準備工作:
1、要清洗水池內所有的贓物、雜物。
2、對水泵及空壓機等需要潤滑部位進行加油潤滑。
3、接通電源,啟動水泵,檢查轉向是否與箭頭所標方向一致。用手動控制啟動空壓機,檢查空壓機運轉是否正常,發現異常情況應及時查清原因。
4、按下刮沫機開關,使其向溶氣系統一端行走。運行到頭后在行程撞塊作用下,刮沫機反向行走,直到污泥槽,行程撞塊將刮板翻起,按下停止按鈕,停止刮沫。


          
          
          
          
          
          
          
          
          
          
          
          
          
          
          
          
          
          
          
          
          
          
          
          
          
          
          
          
	    	
		
		返回首頁
		
		電話
		
		產品中心