涂裝污水處理設備實體銷售商
一、涂裝污水處理設備的介紹:
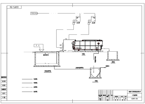
涂裝污水處理設備設備應用新型溶氣機理,自動回轉式刮渣機。主要用于固-液或液-液分離。設計了新穎獨特的溶氣系統,通過溶氣和釋放系統在水中產生大量的微細氣泡,使其粘附于廢水中密度與水接近的固體或液體微粒上,造成整體密度小于水的狀態,并依靠浮力使其上升至水面,達到去除SS和CODcr的目的。其優良的操作性能、卓越的處理效果,已在工業廢水處理中得到充分體現。

二、涂裝污水處理設備產品說明:
溶氣氣浮技術近年來廣泛應用于給排水及廢水處理中,它可以有效的去除水中難以沉淀的輕浮絮體。處理能力大、效率高、占地少、使用范圍廣,被廣泛應用于石油、化工、印染、造紙、煉油、皮革、鋼鐵、機械加工、淀粉、食品等污水處理。
溶氣系統:溶氣系統主要由溶氣罐、儲氣罐、空氣壓縮機、高壓泵組成,溶氣罐是系統中最關鍵的部分,其作用就是實現水和空氣的充分接觸,加速空氣溶解。它是一個密閉耐壓鋼罐,內部設計有擋板、隔套、可以加速氣體和水體的分散、傳質過程,提高溶氣效率。

三、涂裝污水處理設備工作原理:
污水中的污染物分為溶解性有機物和非溶解性物質(即SS),溶解性有機物在一定條件下,可以轉化為非溶液解性物質,污水處理的方法之一就是加入混凝劑和絮凝劑使大部分溶解性有機物轉達化為非溶解性物質,再將全部或大部分非溶液解性物質(即SS)去除以達到凈化污水的目的。
經加藥反應后的污水進入氣浮的混合區,與釋放后的溶氣水混合接觸,使絮凝體粘附在細微氣泡上,然后進入氣浮區。絮凝體在氣浮力的作用下浮向水面形成浮渣,下 層的清水經集水器流至清水池后,一部分回流作溶氣使用,剩余清水通過溢流口流出。氣

四、涂裝污水處理設備產品特點 :
1、系統采用集成化組合方式,有效減少空間需求,占地小,能耗低。
2、自動化程度高,操作方便,管理簡單。
3、溶氣效率高,處理效果穩定,根據需要,可調整溶氣壓力和溶氣水回流比。
4、按不同的水質及工藝要求:可提供單溶氣裝置或雙溶氣裝置。
5、采用可反沖釋放器,提高溶氣水的利用效率,同時保證設備工作穩定


五、涂裝污水處理設備應用領域:
1、分離地表水中細小懸浮物,藻類等微聚體;
2、回收工業廢水中有用物質等;
3、代替二沉池分離和濃縮水中污泥等懸浮物;
4、塑料、石油、化工、造紙、皮革、印染、紡織、食品等加工行業


返回首頁
電話
產品中心